上海某廠界風冷機組噪聲治理案例
本次項目噪聲源主要有屋面冷卻塔、屋面排風機、熱泵機組。噪聲直接傳播到廠界和居民處,造成廠界超標。
2024年8月11日,受該企業委托,我司技術人員在相關負責人的帶領下對其屋面冷卻塔、屋面風機、熱泵機組等噪聲進行了踏勘,并編制技術方案,進行降噪施工。

噪聲源分析
對現場噪聲源及居民和廠界噪聲數據進行采集,通過軟件分析設備噪聲源對廠界和居民點的影響。本設計建模時輸入由總平面圖及現場勘察所了解的建筑及場地布局、建筑高度、噪聲源位置、周邊環境情況等模型數據,進行三維建模。下圖為本項目建模圖。

廠房噪聲源模擬三維圖

噪聲治理前居民和廠界4m高水平聲場
通過軟件模擬可以看出此項目居民點超標5分貝左右,廠界超標8分貝左右。
根據廠界和居民點的超標情況,設計降噪方案,采取降噪措施后,居民和廠界的噪聲模擬圖如下。

噪聲治理后居民和廠界4m高水平聲場
具體措施
屋面女兒墻
在原有女兒墻墻面安裝吸聲體,降低屋面混響及反射聲。
墻面吸聲體外表面設計為防雨百葉,吸聲體之間采用收邊件收邊, 吸聲體頂部采用弧形防雨膠條或打防水膠。

冷卻塔
冷卻塔排風口安裝排風消聲器;兩側進風口安裝L型吸隔聲板降低風機噪聲通過進風口向外界傳播。
下圖為冷卻塔排風口安裝消聲器后的聲壓級變化。


根據冷卻塔排放口噪聲頻譜,設計對應消聲器,在模型里對比分析,排風口加裝消聲器后取得的效果。
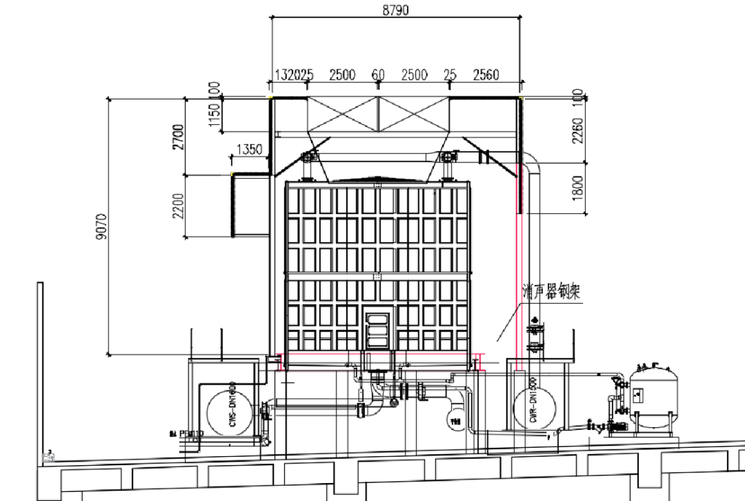
下圖為冷卻塔噪聲治理工藝圖及效果圖。


下圖為現場冷卻塔排風消聲器安裝圖。

屋面排風機
屋面風機排風口安裝消聲器。


屋面熱泵機組
屋面熱泵機組底部壓縮機進行隔聲封閉。

被接受認可,成為本次項目的供應商,我們深感榮幸。作為長三角區域知名的環境科技公司,在近幾年的噪聲治理項目中,我司承擔了多項類似風機設備噪聲治理工程,均已圓滿達標,且獲得業主的表彰。北辰環境將秉持對業主負責的精神,發揮技術、工程、管理及服務等的綜合優勢,保質保量地完成本次任務,給業主方提交一份滿意的答卷!


<
<
<
客服1